PROJEKTER

Asminderød Sognegård
Igangværende ombygning af Asminderød sognegård i Fredensborg, og illustration af mulighed for senere udvidelse.
Sognegården etablerer nyt køkken til brug for husets mange arrangementer, og møderummet på overetagen er udvidet og opgraderet med nye overflader, belysning og akustikløsning.



Utterslev Skole
Ny folkeskole på Skoleholdervej, hvor de lette klasserumsbygninger på den ene side og tungere faglokaler langs vejen er opdelt af en grøn kanal hvor skolens naturprofil udfolder sig. Projektledelse/sagsarkitekt hos KHRAS.

Privat Bolig
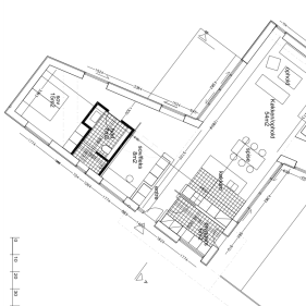
Tilbygning til privat bolig. Typisk udføres et par forskellige skitseforslag. Her to forskellige alternativer til udvidelse med forældresoveværelse og badeværelse. En rund pavillon i forhaven, som er knyttet til det eksisterende villa med et let vindfang. Her udnyttes en lang forhave som ellers primært bruges til parkering. Alternativt en rektangulær bygning med afvalmet saddeltag i baghaven, som både giver mere køkkenplads i boligen og bliver ramme om en dejlig sydvestvendt terrasse.
SKOLER

Forundersøgelser
Udsnit af forundersøgelser fra forskellige skoler i København og omegn.



Lergravsparkens Skole
Lergravsparkens Skole har via en tilbygning i hele skolens længde og højde fået adgang fra alle klasserum til åbne gruppe- og fællesrum. Projektleder og sagsarkitekt i Arkitema. 4.800 m2 (2013-15), budget ca. 100 mio. kr.

Enghave Plads Skole
Enghave Plads Skole fik nyindrettet hele tagetagen til faglokaler. Det store midterområde med naturfag og hjemkundskab er opdelt af en lav kerne, som giver gennemlyste lokaler. Der er lagt vægt på at lokalerne også skal kunne bruges til andet, så det tekniske udstyr er såvidt muligt ikke placeret i bordpladerne. 1.500 m2 (2005) budget ca. 8 mio. kr.

Underviser Arkitektskolen
Mange års undervisningserfaring fra Kunstakademiets Arkitektskole i København, herunder også 3-årig ansættelse på Jan Gehls Byrumscenter, har givet righoldigt indblik i arkitekturens væsen og muligheder. Et nyttigt modspil til praksis.

Konkurrencer
Skitse fra boligkonkurrence i Næstved.

En-familiehus i Nivå
Bygget 2007. SCAN arkitekter.